ログイン
新規登録
お問い合わせ
×
既に登録されている方
ログイン
愛知県名古屋市天白区中坪町
桜通線「野並」徒歩15分
40000円
住所
愛知県名古屋市天白区中坪町
間取詳細
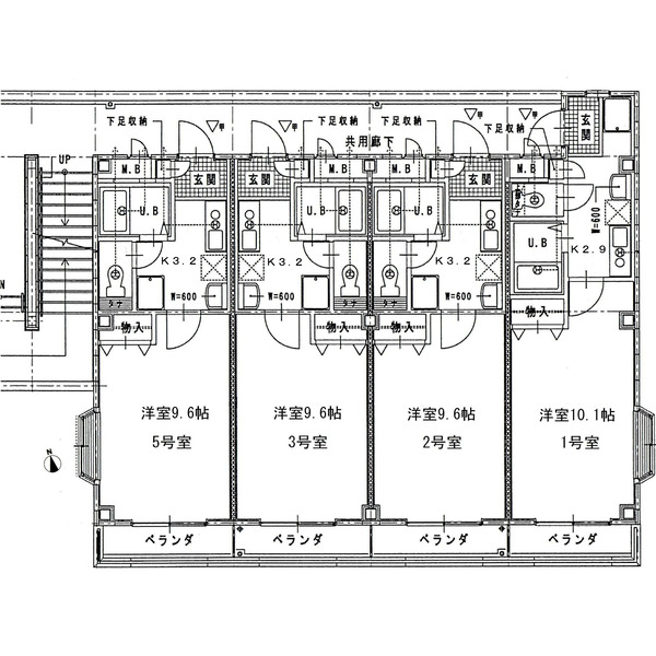
1K (26.35m2)
賃料
40000円
管理・共益費
4,500円/
物件種別
[住居用] マンション
交通
桜通線「野並」徒歩15分
築年月
2002年03月
建物構造
重量鉄骨造地上4階
所在階
3階部分
駐車場
総戸数
方位
保証金
償却・敷引
更新料
他諸経費
設備・条件
kookanにユーザー登録をしていただくと 詳細情報がご覧いただけます。
ログイン
かんたん登録
新規ユーザー登録のご案内
kookan[クーカン]をご利用いただき、ありがとうございます。
kookanにユーザー登録をしていただくと、物件の詳細情報がご覧いただけます。
■ユーザー登録の流れ
1.入力したメールアドレス宛に仮登録メールが届きます。
2.受信したメールに記載されているウェブサイトにアクセスしてください。
3.パスワードを設定し、本登録完了となります。
4.登録時に入力したメールアドレスとパスワードでログインして、kookanをご利用いただけます。
メールアドレス
ユーザー名
利用規約
・
プライバシーポリシー
をご覧ください。
お問合せ先
kookanにユーザー登録をしていただくと 詳細情報がご覧いただけます。